4階 集会室概要
貸出し施設
東海道かわさき宿交流館4階の集会室、談話室は、貸出し施設です。
市民相互の交流の場等として、会議その他様々な用途にご利用いただけます。
ただし、施設の保全、近隣等への影響の観点から一定の利用制限があります。
机・椅子レイアウト 及び 利用申込のご注意
| 集会室 |
集会室は、舞台も備えた多目的な空間です。 パーテーションにより区切り、第1集会室・第2集会室として分割利用できます。 パーテーションのため、遮音性が若干劣ります。 マイク・音響機器等の使用、楽器演奏、歌唱等の際は、音が全室に流れるため、第1・第2集会室・談話室を併せてご利用ください。 かわさきWi-Fi(Kawasaki City Wi-Fi)を使用できます。 |
|---|---|
| 第1集会室 |
第1集会室(約48㎡ 7.8m×6.2m) 標準レイアウト:ロの字型配置(机8基・椅子24脚) |
| 第2集会室 |
第2集会室(約69㎡ 7.8m×8.8m+ステージ5.8m×2.4m) 標準レイアウト:ロの字型配置(机10基・椅子30脚)。 |
| 第1+第2集会室 (合併利用) |
(約117㎡ 7.8m×15m+ステージ5.8m×2.4m) ・ロの字型配置(机16基・椅子48脚) ・教室型配置(机20基・椅子60脚) ・椅子のみ配置(椅子120脚) |
| 談話室(控室) |
談話室 (約15㎡4.4m×3.4m) (机1基、椅子6脚)。 主に、舞台を使うための控室、音響装置の操作の際などに使用します。
◆談話室は、「ふれあいネットシステム」による予約はできません。 ◆第2集会室を利用している場合は、音が漏れるため談話室の単独利用はできません。 ◆利用日の2日前時点において、第2集会室の利用予約がない場合にのみ、談話室の単独利用ができますので、当館へ電話によりお申込みください。 |
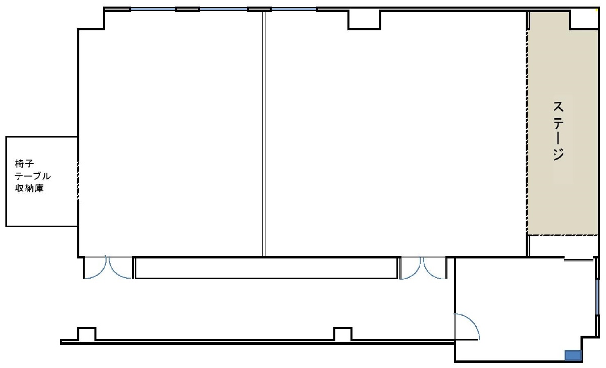
4階フロア図面




◆第1集会室
◆第2集会室
◆第1+第2集会室
◆談話室
利用申込
施設利用の申し込みは、「ふれあいネット」(川崎市公共施設利用予約システム)を使用していただきます。
◆談話室については、「ふれあいネット」による予約はできません。
ふれあいネット」の利用には、利用者登録が必要となります。
「ふれあいネット」の利用者端末、インターネット、電話(プッシュ式のトーン信号を出せるもの)でお申し込みください。
電話等による仮予約はできません。
川崎市の「ふれあいネット」(川崎市公共施設利用予約システム)はこちら(川崎市のホームページへリンク)
休館日
集会室及び談話室の休館日
休館日:12月29日から翌年1月3日まで
ただし、当館の主催・共催事業や保守点検等のため、ご利用いただけない場合があります。
利用時間
集会室及び談話室の利用時間 利用時間:午前9時から午後9時まで(午前・午後・夜間・全日の利用区分があります。)
・利用時間区分は、準備から後片付けまでの時間を含みます。
利用当日
利用当日は、「ふれあいネット」の利用者カードを係員に示し、確認を受けて下さい。
椅子・テーブルの配置、片づけはセルフサービスにてお願いします。
利用終了後は、移動した設備等を元に戻し、係員の確認を受けて下さい。
利用料金
ご利用の当日、ご利用前までに窓口で現金により利用料金をお支払いください。
利用料金の減免
利用料金の減免については、川崎市長の定める基準に従って行います。
※ 川崎市内の学校が、「東海道川崎宿に関する事業」のため利用する場合
ーーー全額を減免
※ 川崎市内の市民団体が、「東海道川崎宿に関する事業」のために利用する場合
ーーー半額を減免
利用料金は、付帯設備(椅子・テーブル・マイク・プロジェクター・スクリーンなど)の使用料を含んでいます。
※マイク・音響機器等の使用、楽器演奏、歌唱等の際は、音が全室に流れるため、第1・第2集会室に談話室を加えた利用料金をお支払いください。
| 利用区分ごとの料金 | 利用料(土、日、祝休日以外の場合) | |||||
| 午前 | 午後 | 夜間 | 全日 | |||
| 9時~12時 | 1時~5時 | 5時30分~9時 | 9時~9時 | |||
| 集会室 | 区画しない場合 | 2,950円 | 3,960円 | 5,290円 | 12,200円 | |
| 区画する場合 | 第1集会室 | 1,220円 | 1,620円 | 2,240円 | 5,080円 | |
| 第2集会室 (ステージを含む) |
1,730円 | 2,340円 | 3,050円 | 7,120円 | ||
| 談話室 | 300円 | 500円 | 710円 | 1,510円 | ||
・土曜日、日曜日、祝休日の利用料は、2割増となります。
| 利用区分ごとの料金 | 利用料(土、日、祝休日の場合) | |||||
| 午前 | 午後 | 夜間 | 全日 | |||
| 9時~12時 | 1時~5時 | 5時30分~9時 | 9時~9時 | |||
| 集会室 | 区画しない場合 | 3,530円 | 4,740円 | 6,340円 | 14,610円 | |
| 区画する場合 | 第1集会室 | 1,460円 | 1,940円 | 2,680円 | 6,080円 | |
| 第2集会室 (ステージを含む) |
2,070円 | 2,800円 | 3,660円 | 8,530円 | ||
| 談話室 | 360円 | 600円 | 850円 | 1,810円 | ||
超過時間の料金
午前又は午後の利用の際、引き続く午後又は夜間に利用予約がない場合は、利用時間の延長ができます。
【午後9時以降の利用時間延長はできません。】
利用時間を延長する場合は、超過時間分の料金をいただきます。
超過時間の料金は、その直前の利用時間の区分における規定料金の1時間当たりの額の2割増(10円未満は切り捨て)となります。
超過時間は、1時間単位とし、30分未満は切り捨て、30分以上は1時間とします。
午前と午後又は午後と夜間を引き続き利用する場合の中間時間は、無料とします。
利用申込
施設利用の申し込みは、「ふれあいネット」(川崎市公共施設利用予約システム)を使用していただきます。
ただし、談話室については、「ふれあいネット」による利用予約はできません。
利用申込の取消
「ふれあいネット」による予約取消は、利用日の3日前までに行ってください。
それ以降の予約取消は、キャンセル料(通常料金と同額)が発生しますので、当館の窓口までご連絡いただき、キャンセル料をお支払いいただきます。
ふれあいネット
「ふれあいネット」について詳しい情報は、川崎市のホームページをご確認ください。
ふれあいネットの詳細はこちら(川崎市のホームページにリンク)
または、ふれあいネット運用センター(TEL 044-741-3345)にお問い合わせください。
ふれあいネットの概要
ふれあいネットの利用者登録
「ふれあいネット」の利用には、利用者登録が必要となります。
利用者登録は、区役所や当施設の受付窓口において、所定の申請書に必要事項を記入していただき手続ができます。
利用者登録をした方には、利用者カードが発行されます。
利用者登録手続きには、本人確認書類が必要となります。
本人確認書類は、「運転免許証」や「マイナンバーカード」のように写真つき証明証は、1種類で足ります。
写真なしの証明証の場合(健康保険証、年金手帳、写真なし住民基本台帳カード、公共料金の領収書等)の場合は、複数の書類で、氏名、生年月日、住所等を確認します
利用者カードの種類
利用者カードは、個人カード(市内個人カード、市外個人カード)の区分があります。
個人カード
15歳以上で、施設利用について責任を負い、使用料等の支払義務者となる方が登録できます。(20歳未満の場合は、法定代理人の同意が必要となります。)
市内個人カード
市内に在住、在勤、在学のいずれかに該当する方です。
市外個人カード
市内に在住、在勤、在学のいずれにも該当しない方です。
施設利用の申し込み
施設利用申込は、インターネット(パソコン、携帯電話、スマートフォン等)、専用利用者端末機、電話(プッシュ式のトーン信号を出せるもの)を使用します。
※東海道かわさき宿交流館では、利用日の2日前時点において、集会室に空きがある場合にのみ、電話での利用申し込みを受け付けています。
施設利用申込の受付時間
毎日7:00~24:00(年末年始12月29日~1月3日を除く。)です。
ただし、専用利用者端末機の利用時間は、端末機設置施設の開館時間内です。
申込・抽選・確定
抽選申込は、市内登録者(市内個人カードをお持ちの方)のみが参加できます。
手続の流れは、抽選申込・抽選・確定手続の順です。それぞれの期間・期日は、次の表のとおりです。
受付期間
| 手続 | 日程 | 内容 |
| 1抽選申込 | 利用月の4カ月前の17日~23日 | 希望する日時、場所を指定して抽選を申し込みます。 |
| 2抽選申込情報照会・取消 | 利用月の4カ月前の17日~23日 | 抽選申込内容を確認できます。抽選を取り消したい場合は、取消手続をします。 |
| 3抽選 | 利用月の4カ月前の24日 |
システムによる抽選を行います。 ※1メールによる抽選結果通知 |
| 4抽選申込情報照会 | 利用月の4カ月前の25日~28日 | 抽選結果を確認します。 |
| 5確定 | 利用月の4カ月前の25日~28日 |
当選した場合は、申込者が確定手続を行います。確定手続きを期限までに行わないと当選が無効となります。 ※2付帯設備の利用 |
| 6予約情報照会 | 確定手続き後 | 予約内容を確認できます。 |
| 7予約取消 | 確定手続き後 |
確定した予約を取消したい場合は、利用日の3日前までに取消手続をします。 ※3キャンセル |
| 8空き室情報確認 | 利用月の4カ月前の1日以降 | |
| 9随時予約 |
利用月の4カ月前の29日以降 ※3 |
・抽選後、空き室がある場合、先着順で予約を受け付けます。 ・利用者カードをお持ちの方が、利用日の3日前までに申込できます。 ・利用日の2日前以降は、「ふれあいネット」による予約はできませんので、利用日の前日までは、当施設の窓口にて予約を受け付けます。 |
※1メールによる抽選通知
「ふれあいネット」による施設の頭文字検索によって、「東海道かわさき宿交流館」の空き情報を確認する場合は、「と」で検索してください。
※付帯設備等の利用
標準レイアウト以外の机、椅子の利用、又はマイクその他の付帯設備の利用は、「ふれあいネット」によってはできませんので、別途、当館の窓口へお申込みください。
ふれあいネットの頭文字検索
「ふれあいネット」による施設の頭文字検索によって、「東海道かわさき宿交流館」の空き情報を確認する場合は、「と」で検索してください。
利用上のご注意
次の場合は、施設のご利用をご遠慮いただく場合がございます。
利用許可の制限
・他の利用者に迷惑をかけたとき、又は迷惑をかけるおそれがあるとき。
・管理上支障があるとき。
・その他、施設等の利用が不適当であるとき。
定員の遵守
消防法上の施設の定員を超えての利用はできません。
貼り紙等
室内の壁、柱、窓、扉等に、貼り紙をしたり、釘や鋲を打たないでください。
資料等を掲示する場合は、ホワイトボードとマグネットを使用してください。
利用終了後
施設利用が終了したときは、窓口までご連絡ください。
移動した机、椅子等は原状に戻してください。
給湯室の湯呑等を使用した場合は、洗って元の場所に収めてください。
ゴミ
ゴミは、お持ち帰りください。
施設の破損等
施設、付属設備等を破損した場合は、損害賠償をしていただきます。
湯茶の利用
湯沸器の利用は、あらかじめ窓口にお申し出ください。
お茶の葉は、利用者側でご用意ください。
火気の禁止
館内での火気の取扱は禁止です。
大音量・振動等
大音量や振動等は、他の部屋の利用者や近隣の迷惑となるのでご遠慮ください。
喫煙
館内は、全館禁煙です。
飲食
集会室、談話室で、会議等に伴う飲食をされる場合は、ご利用前に窓口にて申請が必要です。
なお、持ち込んだ飲食物の容器や残り物等は、利用者側で片づけ、お持ち帰り願います。
危険行為
危険物・不潔物の持込み及び他人の迷惑になる行為をしないでください。
駐車場
当館に専用駐車場は、ございません。
集会室の利用において、車にて物品等を搬入搬出する際は、ご注意ください。
物品販売等
営利を目的とする利用はできません。
許可なく、寄附金の募集、入場料金を徴する催事、物品の販売等を行わないでください。
その他注意事項
当館は、川崎市の東海道かわさき宿交流館条例に基づき管理を行うことから、同条例に定める次の制限があります。
利用の制限
施設の管理上支障があるとき、その他施設等の利用を不適当であると認めるときは、利用を許可しないことがあります。
利用許可の取消等
次のいずれかに該当すると認められるときは、利用許可を取り消し、又は施設等の利用を制限し、若しくは停止することがあります。
(1)利用の目的に反したとき。
(2)秩序を乱し、他人の迷惑となる行為をしたとき。
(3)偽りその他不正な行為により使用許可を受けたとき。
(4)災害その他の事故により利用できなくなったとき。
(5)工事その他川崎市の事業執行上やむを得ない理由により利用できなくなったとき。
(6)前各号に定めるもののほか、東海道かわさき宿交流館条例又はこれに基づく規則に違反したとき。
利用許施設等の変更禁止
利用者は、施設等を利用する場合において、これを模様替えし、又はこれに特別の設備を付設してはなりません。
ただし、施設管理者が特別の理由があると認めるときは、この限りでありません。
利用権の譲渡等
利用者は、施設等を利用する権利を第三者に譲渡し、又は転貸してはなりません。
原状回復
利用者は、施設等の利用を終了し、又は利用許可を取り消され、若しくは施設等の利用を制限され、若しくは停止されたときは、直ちにその施設等を原状に回復し、又は返還しなければなりません。


